¡¡¡¡ÎÒ¹úÊÇÒ»¸öË®×ÊÔ´¶ÌȱµÄ¹ú¼Ò£¬Ä¿Ç°È«¹ú600¶à¸ö³ÇÊÐÖÐÓÐ400¶à¸ö³ÇÊÐȱˮ¡²1¡³¡£³ÇÊÐÎÛË®×ÊÔ´»¯×÷Ϊ¿ªÔ´µÄÖØÒªÐÎʽ£¬ÒѳÉΪ½â¾öˮΣ»úµÄÖØÒª´ëʩ֮һ¡²2¡³¡£ÉòÑô±±²¿ÎÛË®´¦Àí³§ÊǶ«±±µØÇø×î´óµÄÎÛË®´¦Àí³§£¬ÈÕ´¦ÀíÄÜÁ¦Îª40Íòt,ÆäÖÐ20Íòt/d²ÉÓÃA/OÍѵªµÄ´¦Àí¹¤ÒÕ¡£¶Ô¸Ã³§´¦Àí³öË®½øÐÐÉî¶È´¦Àí£¬Ê¹Ö®µÃÒÔ»ØÓ㬶Խâ¾ö³ÇÊÐË®×ÊÔ´¶Ìȱ¾ßÓÐÖØÒªÒâÒå¡£¶Ô´Ë£¬±¾Ñо¿²ÉÓÃÎÛÄà»ØÁ÷¸ßЧÐõÄý+Ë«²ãÂËÁϹýÂ˵ŤÒÕ¶ÔÉòÑô±±²¿ÎÛË®´¦Àí³§µÄ¶þ¼¶Éú»¯´¦Àí³öË®½øÐÐÉî¶È´¦Àí£¬ÒÔ´ïµ½»ØÓÃÓÚ¿µÆ½¿Ó¿Úµç³§ÀäÈ´ÓÃË®µÄÄ¿µÄ¡£Í¨¹ýÖÐÊÔ¶¯Ì¬Á¬ÐøÁ÷ÊÔÑé¶Ô¸Ã¹¤ÒյĿÉÐÐÐÔ½øÐÐÁËÑо¿¡£
¡¡¡¡1 ÊÔÑéϵͳ¼°ÊÔÑé·½·¨
¡¡¡¡1.1 ÊÔÑéË®ÖÊ
¡¡¡¡ÊÔÑéÔˮȡ×ÔÉòÑôÊб±²¿ÎÛË®´¦Àí³§¶þ¼¶Éú»¯´¦Àí¹¤ÒÕ³öË®£¬ÆäË®ÖÊ£ºCODCr 30¡«70 mg/L,×Ç¶È 4¡«14 NTU,É«¶È 38¡«91¶È£¬TP 2.8¡«5.6 mg/L.
¡¡¡¡1.2 ÖÐÊÔ×°ÖÃ
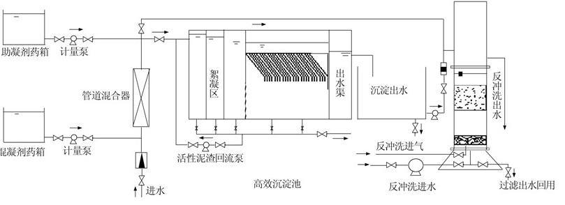
¡¡¡¡ÖÐÊÔÊÔÑéϵͳÁ÷³ÌÈçͼ 1Ëùʾ¡£
ͼ 1 ÖÐÊÔÊÔÑéϵͳÁ÷³Ì
¡¡¡¡¸Ã¹¤ÒÕÖ÷Òª´¦Àíµ¥Ôª°üÀ¨¸ßЧ³Áµí³Ø¡¢»ØÁ÷ϵͳºÍ¹ýÂË×°Öá£ÆäÖУ¬¸ßЧ³Áµí³Ø³ÁµíÇøÖмÓ×°ÁËС¼ä¾àÊúÏòбÏò×éºÏ°å¹¹¼þ£¬ÆäÍø¸ñʽÐõÄý·´Ó¦Çø·ÖΪ14¸ñ;³ÁµíÇøÐ±°å¼ä¾à25 mm,б°å³¤800 mm,ˮƽÇã½Ç60¶È£¬ÔÚб°åÏ´¹Ö±ÑÓ³¤250 mm.¹ýÂË×°ÖÃÂËÖùÄÚ¾¶Îª250 mm,¸ßΪ4 500 mm;Â˲ã²ÉÓÃË«²ãÂËÁÏ£¬ÉϲãΪÎÞÑÌú£¬Á£¾¶1.0¡«2.0 mm,¸ß400 mm,ϲãΪʯӢɰ£¬Á£¾¶0.5¡«1.2 mm,¸ß500 mm;³ÐÍвãºñ400 mm,´Óϵ½ÉÏÓÉ´Öµ½Ï¸ÆÌ²»Í¬Á£¾¶µÄÂÑʯ¡£
¡¡¡¡1.3 ÖÐÊÔϵͳÔËÐй¤ÒÕ²ÎÊýÑ¡Ôñ
¡¡¡¡½øË®Á÷Á¿Îª1 m3/h;»ìÄý¼Á²ÉÓþۺÏÂÈ»¯ÂÁ(PAC),Ͷ¼ÓÁ¿Îª30¡«40 mg/L;ÖúÄý¼Á²ÉÓÃÑôÀë×ÓPAM RT 2300,Ͷ¼ÓÁ¿Îª0.45 mg/L;ÐõÄýʱ¼äΪ 13 min;³Áµí³Ø±íÃæ¸ººÉΪ12 m3/(m2¡¤h);ÂËÖùÂËËÙΪ10 m/h.µ±ÔË®×Ƕȱ仯ʱ£¬»îÐÔÎÛÄà»ØÁ÷Á¿ºÍ»ìÄý¼ÁͶ¼ÓÁ¿ËæÖ®±ä»¯¡£
¡¡¡¡1.4 ·ÖÎöÏîÄ¿Óë·½·¨
¡¡¡¡CODCr¡¢NH3-N¡¢TP¡¢É«¶È¡¢×ǶȺÍÎÛÄàÆ½¾ùŨ¶ÈµÈµÄ·ÖÎö²ÎÕÕ¡¶Ë®ºÍ·ÏË®¼à²â·ÖÎö·½·¨¡·(µÚ4°æ)¡£
¡¡¡¡2 ÊÔÑé½á¹ûÓë·ÖÎö
¡¡¡¡2.1 ÖÐÊÔϵͳ¶ÔÉ«¶ÈºÍ×ǶȵÄÈ¥³ýЧ¹û
¡¡¡¡ÖÐÊÔϵͳ¶ÔÉ«¶ÈºÍ×ǶȵÄÈ¥³ýЧ¹û¼ûͼ 2. ÓÉͼ 2¿ÉÖª£¬µ±Ôˮɫ¶ÈΪ38¡«91¶È£¬×ǶÈΪ4¡«13.4 NTUʱ£¬³Áµí³öˮɫ¶Èƽ¾ùΪ27.9¶È£¬×Ç¶ÈÆ½¾ùΪ1.4 NTU;¹ýÂ˳öˮɫ¶Èƽ¾ùΪ19.7¶È£¬×Ç¶ÈÆ½¾ùΪ0.6 NTU.¾¸Ã¹¤ÒÕ´¦Àíºó£¬×ÜÉ«¶ÈÈ¥³ýÂÊΪ57.1%¡«76.6%,ƽ¾ùΪ65.6%;×Ü×ǶÈÈ¥³ýÂÊΪ84.8%¡«97.5%,ƽ¾ùΪ91.1%.ÊÔÑé½á¹û±íÃ÷£¬¸ßЧ³Áµí×°ÖöÔÉ«¶È¡¢×Ç¶ÈµÄÆ½¾ùÈ¥³ýÂÊ·Ö±ðΪ50%¡¢60%,·Ö±ðÕ¼µ½¹¤ÒÕ¶ÔÉ«¶ÈºÍ×ǶÈÈ¥³ýÂʵÄ76%¡¢66%,˵Ã÷ÎÛÄà»ØÁ÷¸ßЧÐõÄýÊǸù¤ÒÕÈ¥³ýÉ«¶ÈºÍ×ǶȵÄÖ÷ÒªÔÒò¡£
ͼ 2 ½ø³öˮɫ¶ÈºÍ×Ƕȵı仯
¡¡¡¡Ñо¿±íÃ÷£¬¸ßЧ³Áµí³ØÖеĻîÐÔÎÛÄຬÓдóÁ¿½ðÊôÇâÑõ»¯Îï¼°Ðü¸¡½ºÌå¿ÅÁ£Î3¡³£¬Í¨¹ýÎÛÄà»ØÁ÷½Ó´¥ÐõÄýµÄ·½·¨¿ÉÓÐЧÔö¼ÓË®ÖпÅÁ£ÎïŨ¶È£¬Ôö¼Ó»ìÄý¼ÁË®½â²úÎïµÄÐõÄýºËÐÄ£¬Ìá¸ß΢Á£Åöײ¼¸ÂÊ£¬´Ó¶øÌá¸ß¿ÅÁ£¼äµÄÄý¾Û»ú»á£¬´Ù½ø¿ÅÁ£µÄÄý¾Û³É³¤¡£Í¬Ê±£¬»îÐÔÎÛÄàÖÐϸ¾úµÄϸ°û´úлºÍ×ÔÈÜ»áÔÚÌåÍâ·ÖÃÚÒ»Öָ߷Ö×Ó°ûÍâ¾ÛºÏÎï(EPS)¡²4¡³£¬ÔÚÊÊÒËÌõ¼þÏÂEPS¿ÉÓëÐü¸¡¿ÅÁ£Í¨¹ýÀë×Ó¼ü¡¢Çâ¼üÏà½áºÏ£¬Ñ¸ËÙÐγÉÍø×´½á¹¹¶ø³Á½µ¡²5¡³£¬Æä¶ÔÓÚµÍεÍ×ÇË®¾ßÓÐÁ¼ºÃµÄÐõÄýЧ¹û¡£Í¶¼ÓÊʵ±µÄ»ìÄý¼ÁºÍÖúÄý¼Á£¬²ÉÓÃÒíÆ¬Î¢ÎÐÐýÐõÄýÍø¸ñ»ìºÏ£¬²¢ÅäºÏ¸ßŨ¶ÈÎÛÄà»ØÁ÷ÄÜÓÐЧÆðµ½´¦ÀíµÍεÍ×ÇË®µÄÄ¿µÄ¡£Í¨¹ýÔöÇ¿»úе½Á°è£¬¿É´Ù½ø½ºÌå¿ÅÁ£¼ä²úÉúµÄͬÏòÐõÄý£¬½øÒ»²½¸ÄÉÆ»ìÄýЧ¹û¡²6¡³£¬Ê¹É«¶ÈºÍ×Ƕȵȵõ½È¥³ý¡£ÔËÐнá¹û±íÃ÷£¬ÎÛÄà»ØÁ÷¸ßЧÐõÄý+¹ýÂ˹¤ÒÕ¶ÔÉ«¶ÈºÍ×ǶÈÓÐÎȶ¨µÄÈ¥³ýЧ¹û£¬¹¤ÒÕ×îÖÕ³öˮɫ¶ÈºÍ×ǶÈԶСÓÚ¡¶³ÇÊÐÎÛË®ÔÙÉúÀûÓà ¹¤ÒµÓÃˮˮÖÊ¡·(GB/T 19923-2005)ÖеĹ涨£¬·ûºÏÔÙÉúË®»ØÓÃË®Öʱê×¼¡£
¡¡¡¡2.2 ÖÐÊÔϵͳ¶ÔCODCrµÄÈ¥³ýЧ¹û
¡¡¡¡ÖÐÊÔϵͳ¶ÔCODCrµÄÈ¥³ýЧ¹û¼ûͼ 3¡£
ͼ 3 ½ø³öË®CODCrµÄ±ä»¯
¡¡¡¡´Óͼ 3¿ÉÒÔ¿´³ö£¬µ±ÔË®CODCrΪ30¡«70 mg/Lʱ£¬³Áµí³öË®CODCrƽ¾ùΪ 31.1 mg/L,¹ýÂ˳öË®CODCrƽ¾ùΪ 25.3 mg/L,×ÜCODCrÈ¥³ýÂÊÆ½¾ùΪ43%,ÆäÖиßЧ³Áµí×°ÖöÔCODCrµÄÈ¥³ýÂÊÆ½¾ùΪ30%,Õ¼¹¤ÒÕ×ÜÈ¥³ýÂʵÄ70%,˵Ã÷ÎÛÄà»ØÁ÷¸ßЧÐõÄý¶ÔCODCrµÄÈ¥³ýÆðÖ÷Òª×÷Óá£
¡¡¡¡ÎÛÄà»ØÁ÷¸ßЧÐõÄýϵͳÊǽ«¸ßЧ³Áµí³ØÖоßÓÐ𤸽»îÐԵĸßÃܶȳÁµíÎÛÄà»ØÁ÷£¬Óë¼Ó»ìÄý¼ÁµÄÔË®»ìºÏ£¬Í¨¹ý»ìÄý¼ÁѹËõË«µç²ã¡¢Îü¸½¼ÜÇÅ¡¢Íø²¶¾íɨ×÷ÓÃʹ½ºÁ£ÍÑÎȲ¢Äý¾ÛÐγÉÐõÄýÌ塲7¡³£¬Æä²»µ«¶ÔÉ«¶È¡¢×ǶȾßÓÐÁ¼ºÃµÄÈ¥³ýЧ¹û£¬Í¬Ê±ÓÐÖúÓÚÈ¥³ýË®ÖÐÐü¸¡ÓлúÎʹ³öË®CODCr½µµÍ¡£¸Ã¹¤ÒÕ¶ÔCODCrµÄÈ¥³ýЧ¹ûÎȶ¨£¬³öË®CODCr´ïµ½¡¶³ÇÊÐÎÛË®ÔÙÉúÀûÓà ¹¤ÒµÓÃˮˮÖÊ¡·(GB/T 19923-2005)µÄÒªÇó¡£
¡¡¡¡2.3 ÖÐÊÔϵͳ¶Ô×ÜÁ×µÄÈ¥³ýЧ¹û
¡¡¡¡ÖÐÊÔϵͳ¶Ô×ÜÁ×µÄÈ¥³ýЧ¹ûÈçͼ 4Ëùʾ¡£´Óͼ 4¿ÉÒÔ¿´³ö£¬µ±ÔË®×ÜÁ×Ϊ2.8¡«5.6 mg/Lʱ£¬³Áµí³öË®×ÜÁׯ½¾ùΪ1.0 mg/L,¹ýÂ˳öË®×ÜÁׯ½¾ùΪ0.6 mg/L,×ܵÄ×ÜÁ×È¥³ýÂÊΪ75.6%¡«94.6%,ƽ¾ùΪ86.3%.ÊÔÑé½á¹û±íÃ÷£¬¸Ã¹¤ÒÕ¶Ô×ÜÁ×µÄÈ¥³ý±È½ÏÀíÏë¡£»ìÄý¼ÁÈܽâºóµÄ½ðÊôÑôÀë×Ó¿ÉÓëÎÛË®ÖеÄÁ×·´Ó¦£¬Éú³ÉÄÑÈܽâµÄÁ×ËáÑÎÀà³ÁµíÎ8¡³£¬Òò´Ë»ìÄý¹ý³ÌÈ¥³ýÁ×µÄЧ¹ûÏÔ×Å¡£»ìÄý¹ý³ÌÔÚÈ¥³ý·ÇÈܽâÐÔ¹ÌÌåµÄͬʱ£¬Ò²¿ÉÈ¥³ýÎÛË®ÖеÄijЩÈܽâÐÔÎïÖÊ(ÈçÉé¡¢¹¯µÈ).´ËÍ⣬¸ßЧ³Áµí³Ø³öˮͨ¹ýÎÞÑÌúºÍʯӢɰ˫²ãÂËÁϵĹýÂË×÷Óã¬ÆäÖÐδ³ÁµíÍêÈ«µÄ½ºÌåÎïÖʺÍÐü¸¡ÎïÖʵõ½½øÒ»²½È¥³ý£¬½øÒ»²½½µµÍÁ˳öË®Á׺¬Á¿£¬Ìá¸ßÁËϵͳÕûÌå´¦ÀíЧ¹û¡£
ͼ 4 ½ø³öË®×ÜÁ׵ı仯
¡¡¡¡2.4 ÖÐÊÔϵͳ¶Ô°±µªµÄÈ¥³ýЧ¹û
¡¡¡¡ÖÐÊÔϵͳ¶Ô°±µªµÄÈ¥³ýЧ¹ûÈçͼ 5Ëùʾ¡£
ͼ 5 ½ø³öË®°±µªµÄ±ä»¯
¡¡¡¡ÓÉͼ 5¿ÉÒÔ¿´³ö£¬ÔË®°±µªÔÚ¿ªÊ¼½×¶Î±È½ÏµÍ(<1 mg/L),´Ëʱ³öË®°±µª<1 mg/L.µ±ÔË®°±µªÎª5¡«15 mg/Lʱ£¬¹ýÂ˳öË®°±µªÔÚ12 mg/LÒÔÏ¡£ÏµÍ³×ܰ±µªÈ¥³ýÂÊÆ½¾ù½öΪ19.7%,˵Ã÷¸Ã¹¤ÒÕ¶Ô°±µªµÄÈ¥³ý²¢²»ÀíÏë¡£ÕâÊÇÒòΪÔË®ÖеݱµªÖ÷ÒªÒÔÀë×Ó̬ÈܽâÓÚË®ÖУ¬Óû¯Ñ§·¨È¥³ý°±µªÃ»ÓÐÌ«´óµÄ×÷Óã¬Òò´Ë£¬»ìÄý³Áµí+¹ýÂ˹¤ÒÕºÜÄѽ«ÆäÈ¥³ý¡²9¡³;µ«ÓÉÓÚÍø²¶¾íɨ×÷ÓÃÒ²Äܹ»È¥³ýһС²¿·Öº¬µªÓлúÎʹ¹¤ÒÕ¶ÔµªÒ²ÓÐÒ»¶¨µÄÈ¥³ýЧ¹û¡£Í¬Ê±£¬Ñо¿·¢ÏÖ¸ßЧ³Áµí³Ø³öË®¾¹ýÂËÒÔºó£¬Æä°±µª¶¼ÓÐ΢СµÄÉÏÉýÇ÷ÊÆ¡£¾·ÖÎö¿ÉÄÜÊÇÓÉÓÚÂËÖùÖдæÔÚȱÑõÇø£¬ÔÚ·´Ïõ»¯¹ý³ÌÖз¢Éúͬ»¯·´Ïõ»¯£¬Ê¹Ò»²¿·ÖÏõ̬µª×ª»¯Îª°±Ì¬µª¡£
¡¡¡¡3 ÖÐÊÔÊÔÑé²úË®³É±¾·ÖÎö
¡¡¡¡Í¨¹ýÉ豸µÄ³õÆÚͶ×Ê¡¢³¤ÆÚÔËÐзÑÒÔ¼°Î¬»¤·Ñ¼ÆËã²úË®³É±¾¡£
¡¡¡¡³õÆÚͶ×ʰüÀ¨¼ÆÁ¿±Ã¡¢»îÐÔÄàÔü»ØÁ÷±Ã¡¢ÂËÖù·´³åÏ´±Ã¡¢¹ÜµÀ»ìºÏÆ÷µÈÉ豸£¬ÒÔ¼°¸ßЧÐõÄý³Áµí³Ø¡¢ÂËÖùµÈÖÐÊÔ×°Öá£Ê¹ÓÃÊÙÃü°´4 a¼Æ£¬Ôòÿ¶Ö²úË®ÕÛºÏÉ豸·Ñ0.28Ôª£¬É豸Õ۾ɷÑ0.11Ôª¡£
¡¡¡¡³¤ÆÚÔËÐзѼ°Î¬»¤·Ñ°üÀ¨Ò©¼Á·Ñ¡¢È˹¤·Ñ¡¢µç·ÑµÈ¡£ÆäÖиßЧÐõÄý¹¤ÒÕÖÐÊÔÊÔÑéÿ¶Ö²úË®ÏûºÄµçÄÜ0.5 kW¡¤h,µç·Ñµ¥¼Û°´0.5Ôª/(kW¡¤h)¼Æ£¬Ôòÿ¶Ö²úË®µç·ÑΪ0.25Ôª;ÿ¶Ö²úË®ÏûºÄ¾ÛºÏÂÈ»¯ÂÁ(°´40 mg/L¼Æ)Óë¾Û±ûÏ©õ£°·(°´0.4 mg/L¼Æ)·ÑÓÃΪ0.35Ôª;ÿ¶Ö²úË®È˹¤·Ñ°´0.18Ôª¼Æ¡£Óɴ˿ɼû£¬²ÉÓÃÎÛÄà»ØÁ÷¸ßЧÐõÄý+¹ýÂ˹¤ÒÕ¶ÔÎÛË®´¦Àí³§¶þ¼¶Éú»¯´¦Àí³öË®½øÐÐÉî¶È´¦Àíʹ֮»ØÓõIJúË®³É±¾Îª1.17Ôª/ m3,¾ßÓд¦ÀíЧ¹ûºÃ¡¢²úË®³É±¾µÍµÄÓÅÊÆ¡£¡£
¡¡¡¡4 ½áÂÛ
¡¡¡¡³ÇÊÐÎÛË®´¦Àí³§¶þ¼¶Éú»¯´¦Àí¹¤ÒÕ³öË®¾¹ýÖÐÊÔÌõ¼þϵÄÎÛÄà»ØÁ÷¸ßЧÐõÄý+¹ýÂËÁªºÏ¹¤ÒÕ´¦Àíºó£¬³öˮɫ¶ÈΪ19.7¶È£¬×ǶÈΪ0.6 NTU,CODCrΪ25.3 mg/L,×ÜÁ×Ϊ0.6 mg/L,³öˮɫ¶È¡¢×Ƕȡ¢CODCr¡¢×ÜÁ×Äܹ»Âú×ã¡¶³ÇÊÐÎÛË®ÔÙÉúÀûÓà ¹¤ÒµÓÃˮˮÖÊ¡·(GB/T 19923-2005)µÄÒªÇó¡£µ«ÏµÍ³¶Ô°±µªÈ¥³ýЧ¹û²»ÉõÀíÏ룬½¨ÒéÁíÐÐÔö¼Ó°±µª´¦Àí¹¤ÒÕ¡£
¡¡¡¡²ÉÓÃÎÛÄà»ØÁ÷¸ßЧÐõÄý+¹ýÂ˹¤ÒÕ¶ÔÎÛË®´¦Àí³§¶þ¼¶Éú»¯´¦Àí³öË®½øÐÐÉî¶È´¦Àí»ØÓõIJúË®³É±¾Îª1.17Ôª/m3,¾ßÓÐÒ»¶¨µÄ¾¼Ã¿ÉÐÐÐÔ¡£















